Trilocale in vendita

Pesaro, Via Andrea Costa - Miralfiore
€ 120.000
3 locali 3 locali
47 Mq 47 Mq
1 bagno 1 bagno

Trilocale in vendita

Pesaro, Via Andrea Costa - Miralfiore

Descrizione annuncio

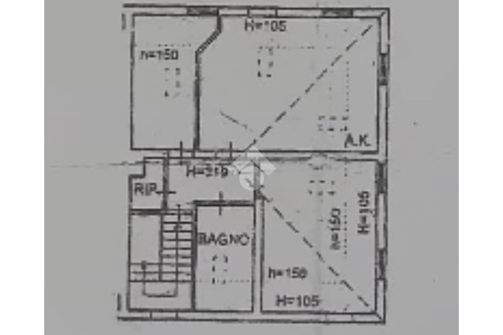
Pesaro, località Miralfiore, di fronte alla coop, appartamento mansardato con due camere da letto.

Situato al terzo e ultimo piano di un edificio costruito nel 1970, l'immobile offre una superficie di 50 mq, ideale per chi cerca un ambiente intimo e funzionale.

La disposizione interna comprende tre locali ben distribuiti, perfetti per organizzare gli spazi secondo le proprie esigenze.

La categoria civile dell'immobile garantisce un contesto residenziale sereno e ben servito.

All'appartamento sono state eseguite opere di manutenzione ordinaria.

La posizione strategica permette di godere della tranquillità del quartiere, senza rinunciare alla comodità dei servizi cittadini e del centro città facilmente raggiungibili.

Un'opportunità comunque interessante per chi desidera investire in una soluzione abitativa pratica e ben collegata.

Mostra tutto

Nelle vicinanze

Trasporto pubblico Trasporto pubblico
stazione di Pesaro
stazione di Pesaro
530 m
Trasporto pubblico
960 m
Ricariche auto elettriche Ricariche auto elettriche
CONAD Pesaro | EnelX
1,2 Km
EnelX Eva+ Conad Superstore Pesaro
1,5 Km
Eneldrive Parcheggio Il Curvone
1,6 Km
Scuole Scuole
Scuola Media Statale Annibale Olivieri
200 m
Scuola elementare Largo Baccelli
410 m
Scuola Elementare San Giovanni Bosco
790 m
Istituto Professionale per l'Industria e l'Artigianato Giuseppe Benelli
880 m
Scuola Elementare Luigi Pirandello
920 m
Farmacia Farmacia
Farmacia Comunale Pantano
420 m
Farmacia Comunale Andrea Costa
500 m
Farmacia Comunale San Martino
680 m
Farmacia Sant'Antonio
760 m
Farmacia Antonioli
890 m
Ospedali Ospedali
Ospedale San Salvatore di Pesaro sede centrale
720 m
Ospedale San Salvatore di Pesaro sede Muraglia
2,4 Km
Struttura Socio Sanitaria
2,5 Km
Supermercati Supermercati
Ipercoop Miralfiore
230 m
Simply Market
790 m
Coop
1,0 Km
Super A&O
1,2 Km
Conad
1,2 Km
Negozi Negozi
Negozi
1,1 Km
Mercato del pesce
2,1 Km
Paper Surf
2,2 Km
Discount
2,7 Km
OVS
2,8 Km
Bar Bar
Bar
670 m
Bar Antaldi
900 m
Centralino
1,2 Km
Bar Carla 1989
1,2 Km
Circolo Mengaroni
1,5 Km
Ristoranti Ristoranti
Angolo della pizza
530 m
C'Era Una Volta
890 m
Kentaro
900 m
Felici e Contenti
910 m
Ristoranti
920 m
Mostra tutto

Caratteristiche

Rif.:
61103992
Piano:
3 di 3 (ultimo Piano)
Camere da letto:
1
Arredamento:
Parziale
Condizionamento:
Autonomo
Ascensore:
No
Mostra tutto
Prezzo Prezzo
€ 120.000
Rata mutuo Rata mutuo
€ 565 / mese
Spese annue Spese annue
€ 150
Proponi il tuo prezzoProponi il tuo prezzo
Immobile valutato con T·Valuta

Classe Energetica

G
G
G
G
G
G
G
G
G
EP globale non rinnovabile:
254.50 kW h/m² anno
EP globale rinnovabile:
4.80 kW h/m² anno
EP invernale del fabbricato:
EP estiva del fabbricato:
Anno di costruzione:
1970
Riscaldamento:
Autonomo
Tipo impianto:
A radiatori
Tipo alimentazione:
Metano

Ti interessa visionare l'immobile?

Fissa un appuntamento  Fissa un appuntamento

Richiedi informazioni

Clicca su Leggi per aprire l'informativa
* Questi campi sono obbligatori

Calcola il tuo mutuo

Semplice e senza impegno
Anticipo

( % )
Mutuo

( % )

pochi semplici passi

inserisci i tuoi dati
Questionario completato
Grazie per aver richiesto un appuntamento senza impegno con un nostro Consulente del Credito e Assicurativo.

Hai inserito correttamente tutti i dati necessari e a breve riceverai una e-mail con un link da convalidare per inviare i tuoi dati.
Affiliato
Studio Diciotto Srl
Via Giolitti, 83/85 61121 Pesaro (PU)
Via Giolitti, 83/85 61121 Pesaro (PU)
Zona: Pantano - Loreto - Montegranaro - Muraglia - Celletta - Santa Veneranda - Candelara - Trebbiantico
Mostra su mappa
Orari: Dal lunedì al venerdì 9-13 e 15-19. Sabato 9-13
Affiliato
Studio Diciotto Srl
Via Giolitti, 83/85 61121 Pesaro (PU)

2026 Tecnocasa Franchising S.p.A. - P. IVA 08365160152 - Via Monte Bianco 60/A 20089 Rozzano (MI). Ogni agenzia ha un proprio titolare ed è autonoma. Privacy policy | Policy utilizzo | Cookie policy